Most shipping weights are approximate and have not been verified. If the exact weight is needed to determine shipping costs before completing your order, request this prior to submission by contacting CRL Customer Service. Product images shown are of the actual product or a close representation. Colors can vary depending on your computer's video card and monitor settings.
CRL
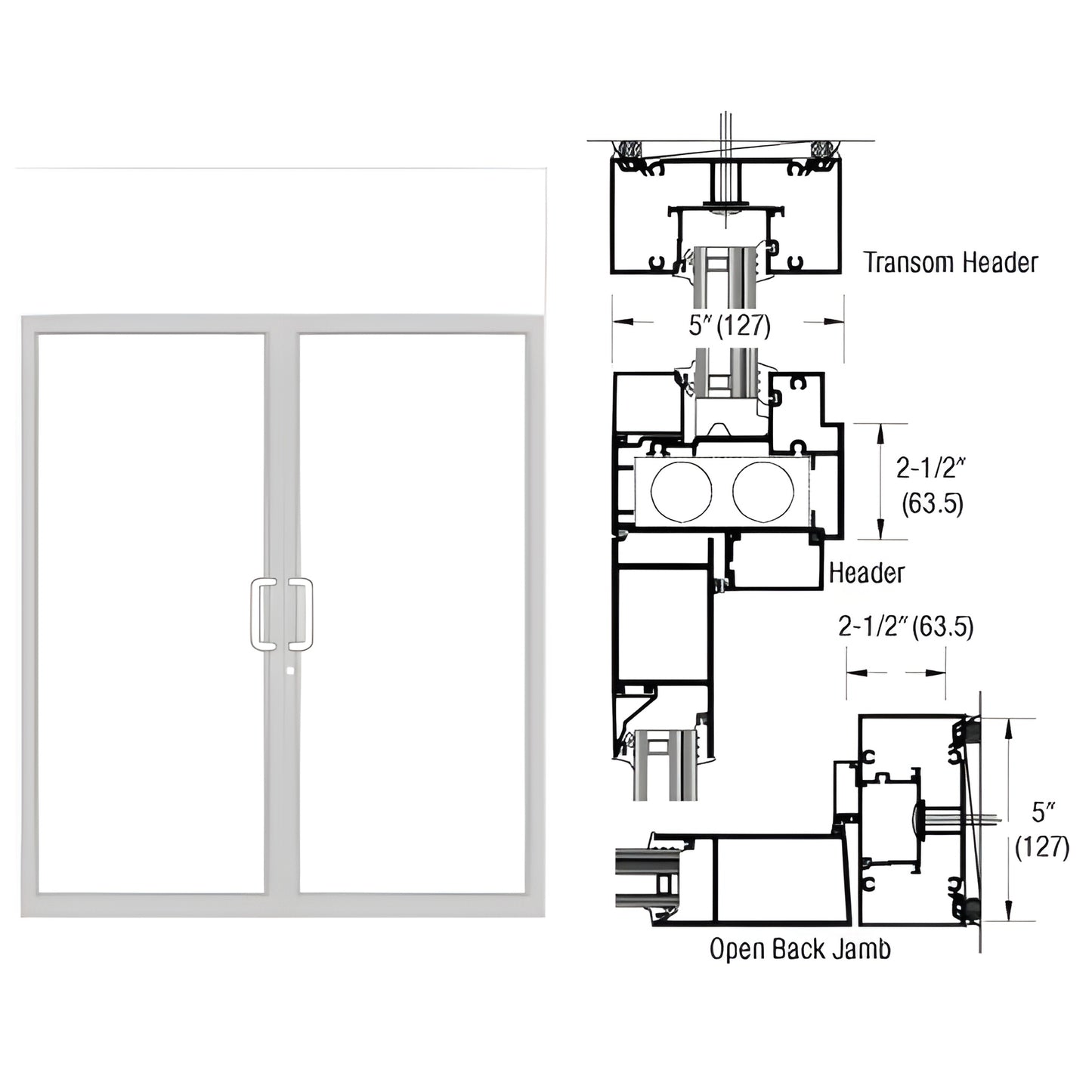
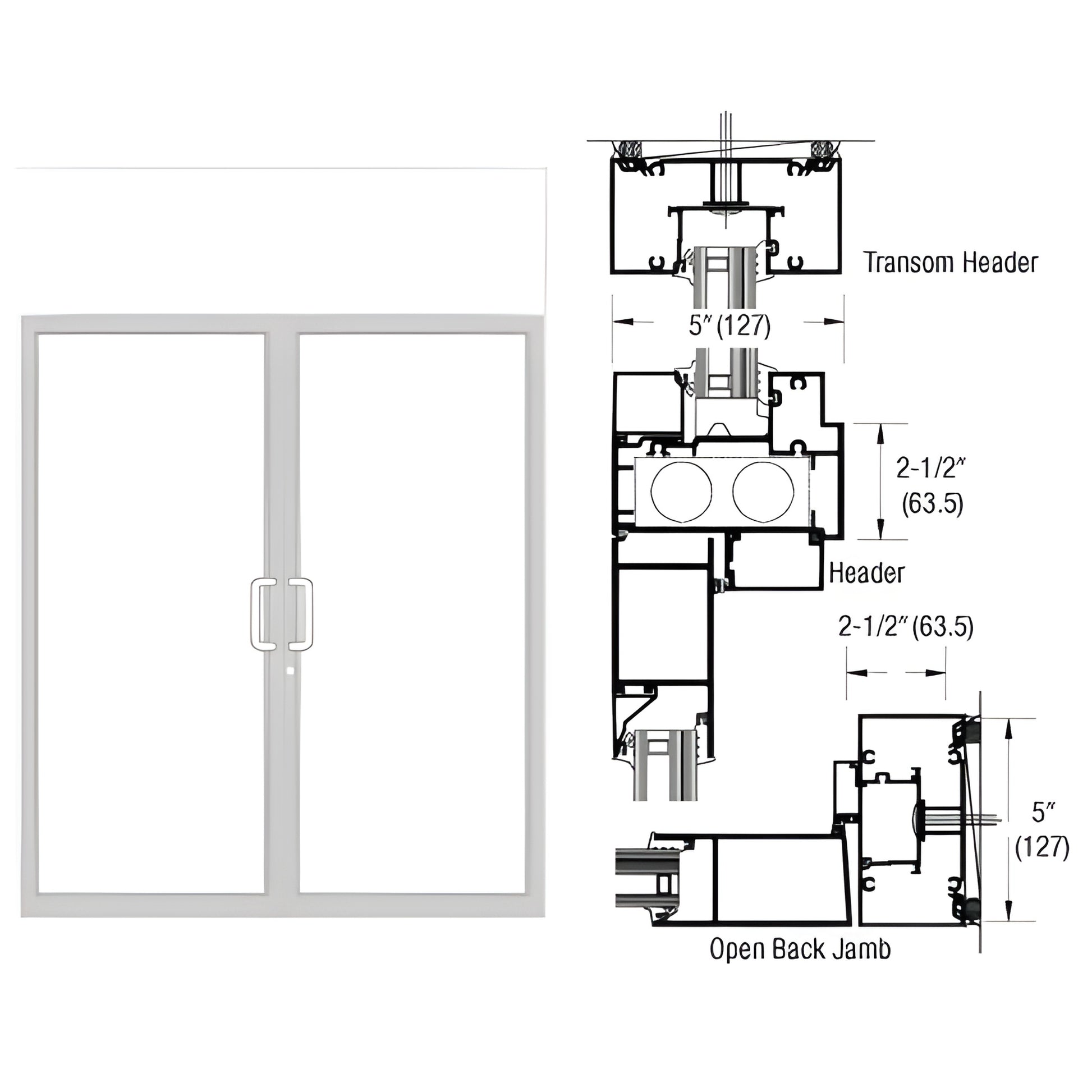
CRL-U.S. Aluminum IG600 Custom Transom KYNAR Geared/Overhead Closers
CRL-U.S. Aluminum IG600 Custom Transom KYNAR Geared/Overhead Closers
Couldn't load pickup availability
Shipping Weight: NA
Shipping Limitations: None
Minimum Order Quantity: 1
Unit of Measure: each
Compliance and Restrictions
Warning: Reproductive Harm
www.p65warnings.ca.gov

Description
Overview
- 2-1/2" x 5" (63.5 x 127 mm) transom door frame
- Prep for overhead concealed closer and standard flush-bolt strike
- Includes TH811 air resistant threshold; optional air/water resistant threshold available
Custom Transom Door Frame (SKU: 0F92952) — purpose-built for a pair of geared hinged hurricane impact doors using 1-5/16" (33 mm) laminated impact glazing. Constructed from IG626/IG147/IG146 door jambs with IG667/IG200/IG663 header assemblies, NP803 and NP801 gasketing for overhead concealed closer, IG626 transom header, and TH811 air threshold. Ideal long‑span hurricane impact transom frame for commercial and residential impact door systems where air resistance and concealed closer preparation are required.
Key differentiators: built-in prep for overhead concealed closers, integrated gasketing (NP803/NP801) for enhanced sealing, and compatibility with optional air/water resistant thresholds for improved storm and weather performance.
When installing hurricane impact products, always refer to FPA Guidelines.
Contact CRL for lead times, optional air/water threshold pricing, or to place an order.
